Valný logo
Skráð 2. okt. 2025
Söluyfirlit

Dísardalur 4B

Nýbygging • Tví/Þrí/FjórbýliSuðurnes/Reykjanesbær/Njarðvík-260
118.8 m2
4 Herb.
3 Svefnh.
1 Baðherb.
Verð
79.900.000 kr.
Fermetraverð
672.559 kr./m2
Fasteignamat
55.650.000 kr.
Valný fasteignasala
Mynd af Valgeir Leifur Vilhjálmsson
Valgeir Leifur Vilhjálmsson
Eigandi / Löggiltur fasteignasali
Byggt 2025
Þvottahús
Garður
Sérinngangur
Valný fasteignasala og Valgeir Leifur löggiltur fasteignasali kynna:

Dísardalur 4B, 260 Reykjanesbær

Ný og fullbúin fjögurra herbergja tvíbýli á efri hæð í Dalshverfi III. Sérinngangur, svalir og geymsla innan íbúðar. Afhending við kaupsamning.

Smelltu hér til að fá sent söluyfirlit.

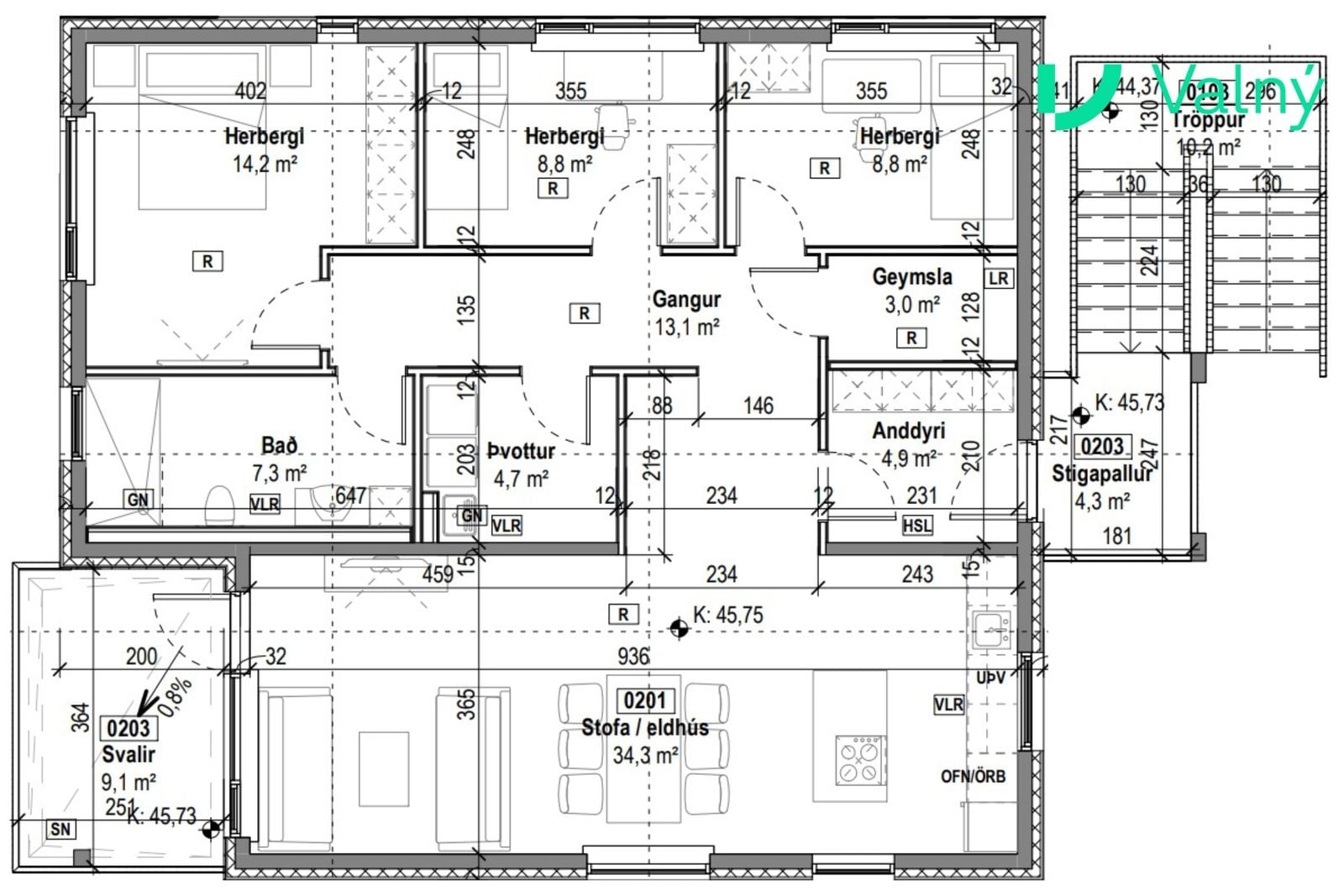
Samkvæmt fasteignaskrá HMS er eignin skráð samtals 118.8 m².
Eign merkt 02-01, fastanúmer 253-1947 ásamt öllu því sem eigninni fylgir, þar með talið tilheyrandi lóðar og sameignarréttindi.


Eignin skilast fullbúin skv. skilalýsingu:

Frágangur innanhúss:
Innréttingar
frá HTH eða sambærilegum gæðum.
Eldhús samkvæmt teikningu, skúffur með mjúklokun. Tæki: bakaraofn, helluborð og háfur með kolasíu frá AEG eða sambærilegu. Borðplata úr plastefni. Seljandi áskilur sér rétt til efnis- og litabreytinga á framkvæmdatíma.
Baðherbergi flísalagt (30×60 cm eða 60×60 cm þar sem við á) á gólfi og veggjum að hluta. Upphengt salerni, handklæðaofn og flísalögð walk-in sturta. Speglar fylgja ekki.
Hreinlætistæki eru frá Grohe eða sambærilegt.
Gólfefni parket (eða vinylparket að vali seljanda) í alrými og herbergjum, flísar í votrýmum. Flísar og parket frá Álfaborg eða sambærilegu.
Innihurðir yfirfelldar, áferð hvíttuð eik eða hvítt sprautulakk. Ringo eða sambærileg.

Frágangur utanhúss:
Húsið er staðsteypt og einangrað að utan. Þakplata með tveimur lögum heilbrædds þakpappa, XPS einangrun, jarðvegsdúk og harpaðri þakmöl. Gluggar ál/timbur (BYKO). Hurðir og opnanleg fög úr áli (BYKO). Innveggir og loft spartlað, grunnað og málað í ljósum lit. Svalahandrið eru úr málmrimlum.

Lóð, aðkoma og sameign:
Bílastæði eru samkvæmt skipulagsskilmálum og hönnunargögnum. Stæði eru áætluð fyrir hreyfihamlaða. Bílastæði eru malbikuð, afmörkuð með kantsteini að utanverðu en merkt með málningu. Gönguleiðir eru ýmist hellulagðar, steyptar og eða malbikaðar. Lóð er að öðru leyti tyrft. Sorptunnuskýli og eða djúpgámar eru samkvæmt lóðarblaði á sameiginlegu svæði Á jarðhæð er hjóla- og vagnageymsla í sameign. Gólf í inntaksrými og hjóla- og vagnageymslur verða máluð. Inntaksrými og hjóla- og vagnageymslur eru innan sama rýmis.

Fyrir nánari lýsingu vísast til skilalýsingar byggingaraðila.

Um verkefnið – Dalshverfi III
Dalshverfi III í Innri-Njarðvík er nýtt og ört vaxandi hverfi. Heildarfjöldi íbúða í verkefninu er 146 í 20 húsum, tveggja hæða fjölbýli með sérinngöngum. Íbúðastærðir eru u.þ.b. 55–120 m², ýmist 2ja, 3ja og 4ra herbergja. Allar íbúðir afhendast fullbúnar að innan sem utan með gólfefnum. Svalir og sólpallar snúa að suðvestri.
Smelltu hér til að sjá nánar um allar eignirnar.

Myndir eru til viðmiðunar og geta verið úr sambærilegri íbúð, en endurspegla ekki endilega þessa tilteknu íbúð.

Allar nánari upplýsingar veitir:
Valgeir Leifur / Löggiltur fasteignasali / 780-2575 / valgeir@valny.is


Ertu að leita að nýbyggingum? Skoðaðu úrvalið hjá Valný – smelltu hér.
Ertu að hugsa um að selja? Smelltu hér og fáðu frítt verðmat.
Ekki missa af draumaeigninni – fylgstu með okkur á Instagram og Facebook
Lestu reynslusögur frá ánægðum viðskiptavinum okkar.


- Fasteignasalan sem opnar dyrnar að þinni eign.

Valný fasteignasala | www.valny.is | Tjarnargötu 2, 230 Reykjanesbær | Opið alla virka daga frá 9:00-16:00
Valný logo
Fasteignasalan
sem opnar dyrnar að þinni eign.
Hafðu samband
valgeir@valny.isS: 780 2575
Tjarnargata 2
kt. 4503240510
Hlekkir
Samfélagsmiðlar
© Copyright 2025 - Valný
Knúið af
Fasteignaleitin